Te renoveren villa in de gegeerde wijk "ter Beuken". De reeds afgeleverde bouwvergunning omvat 3 slaapkamers, 2 badkamers, bureau, inpandige garage en zwembad. Dit alles op een perceel van 1297 m². Renoveren kan aan 6% btw. EPC F-label.

Mel Driesen
T: +32 14 21 06 09
E: mel@vansweevelt.be
kantoor Herentals
Belgiëlaan 4
2200 Herentals
Te renoveren villa in de gegeerde wijk "ter Beuken". De reeds afgeleverde bouwvergunning betreft 3 slaapkamers, 2 badkamers, bureau, inpandige garage en zwembad. Dit alles op een perceel van 1297 m². Renoveren kan aan 6% btw. EPC F-label.
De getoonde foto's zijn visualities op basis van de vergunde plannen en komen dus niet overeen met de huidige toestand.
Ligging: In de groene en gegeerde residentiële wijk 'Ter Beuken', op wandelafstand van prachtige natuur en op korte afstand van winkels, scholen, openbaar vervoer, sport -en recreatiecentrum, ... met een vlotte verbinding naar omliggende gemeentes, de ring van Herentals, ... Kortom alles is eenvoudig bereikbaar vanuit deze centrale, doch zeer rustige buurt.
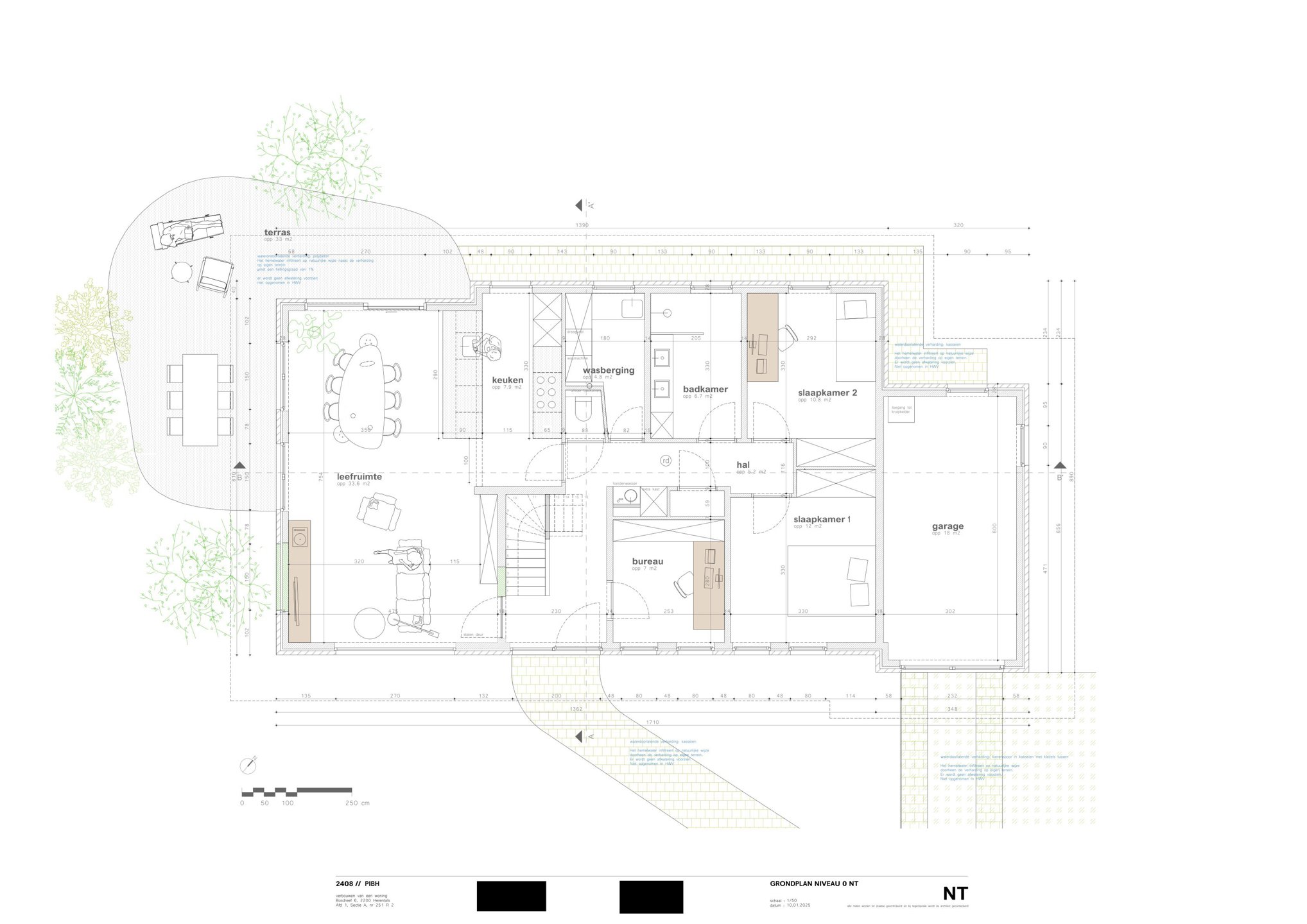
Indeling: 0: inkomhal, leefruimte met open keuken, nachthal, wasberging, bureau, badkamer, 2 slpks, inpandige garage +1: overloop, slaapkamer met dressing en ensuite badkamer, cosy hoek buiten: Tuin met zwembad en terras
Beschrijving: Deze residentiële villa werd oorspronkelijk gebouwd in 1964 en beschikt over een solide basis en structuur voor een renovatie naar hedendaagse normen. Wie aan de voorwaarden voldoet en renoveert met een aannemer kan dit doen aan het gunsttarief van 6% BTW (ipv 21%).
Ook bij sloop-en heropbouw kan dit aan 6%, indien aan de voorwaarden wordt voldaan.
Voor meer info zie: https://www.vlaanderen.be/bouwen-wonen-en-energie/bouwen-en-verbouwen/btw-tarief-van-6-bij-renovatie-en-sloop-en-heropbouw-van-woningen
Droomt u van een locatie waar kinderen nog op straat kunnen spelen en waar alleen lokaal verkeer komt? Een locatie omringd door bomen en groen maar toch vlot bereikbaar? Privacy en rust op een ruim perceel met zwembad? Deze ligging heeft het allemaal!
Deze woning valt onder de renovatieplicht. Deze loopt reeds sinds 26/07/2025. Onder de huidige regelgeving zal de woning dus uiterlijk op 26/07/2030 over minstens een EPC Label-D dienen te beschikken.
Voor meer info, kijk op de website van het Vlaams Energie- en Klimaatagentschap: https://energiesparen.be/renovatieverplichting
Bijzondere informatieplicht: omgevingsvergunning stedenbouwkundige handelingen uitgereikt, woongebied, geen rechterlijke herstelmaatregel of bestuurlijke maatregel opgelegd, geen voorkooprecht ruimtelijke ordening, omgevingsvergunning voor verkavelen van gronden uitgereikt.
Dit is geen aanbod maar een onderhandelingsvoorstel. Alle informatie onder voorbehoud van materiële vergissingen en/of wijzigingen.
Dit is geen aanbod maar een onderhandelingsvoorstel. Alle informatie onder voorbehoud van materiële vergissingen en/of wijzigingen.