Halfopen woning op 269 m² met o.a. 3 slaapkamers, inpandige garage en ruim bijgebouw (28m²). Centrale verwarming op gas (CV-ketel van 2013). Zuidwest georiënteerde tuin. EPC D 387 kWh/m². Geen renovatieverplichting.

Mel Driesen
T: +32 14 21 06 09
E: mel@vansweevelt.be
kantoor Herentals
Belgiëlaan 4
2200 Herentals
Te vernieuwen halfopen woning op 269 m² met o.a. 3 slaapkamers, inpandige garage en ruim bijgebouw (28m²). Centrale verwarming op gas (CV-ketel van 2013). Zuidwest georiënteerde tuin. EPC D 387 kWh/m². Geen renovatieverplichting.
Ligging: op slechts 400m van hartje Noorderwijk met een speelplein in deze rustige straat. Zeer goede verbinding naar omliggende gemeentes en vlotte bereikbaarheid via E313. Alle faciliteiten op wandelafstand. Zuidwestelijk geörienteerd perceel.
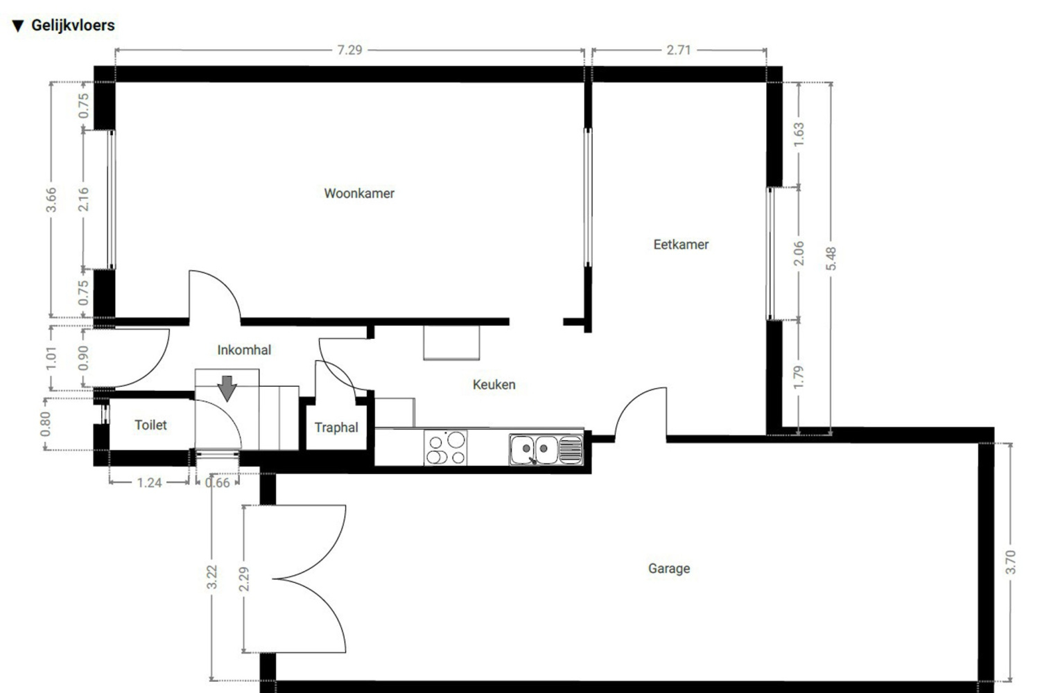
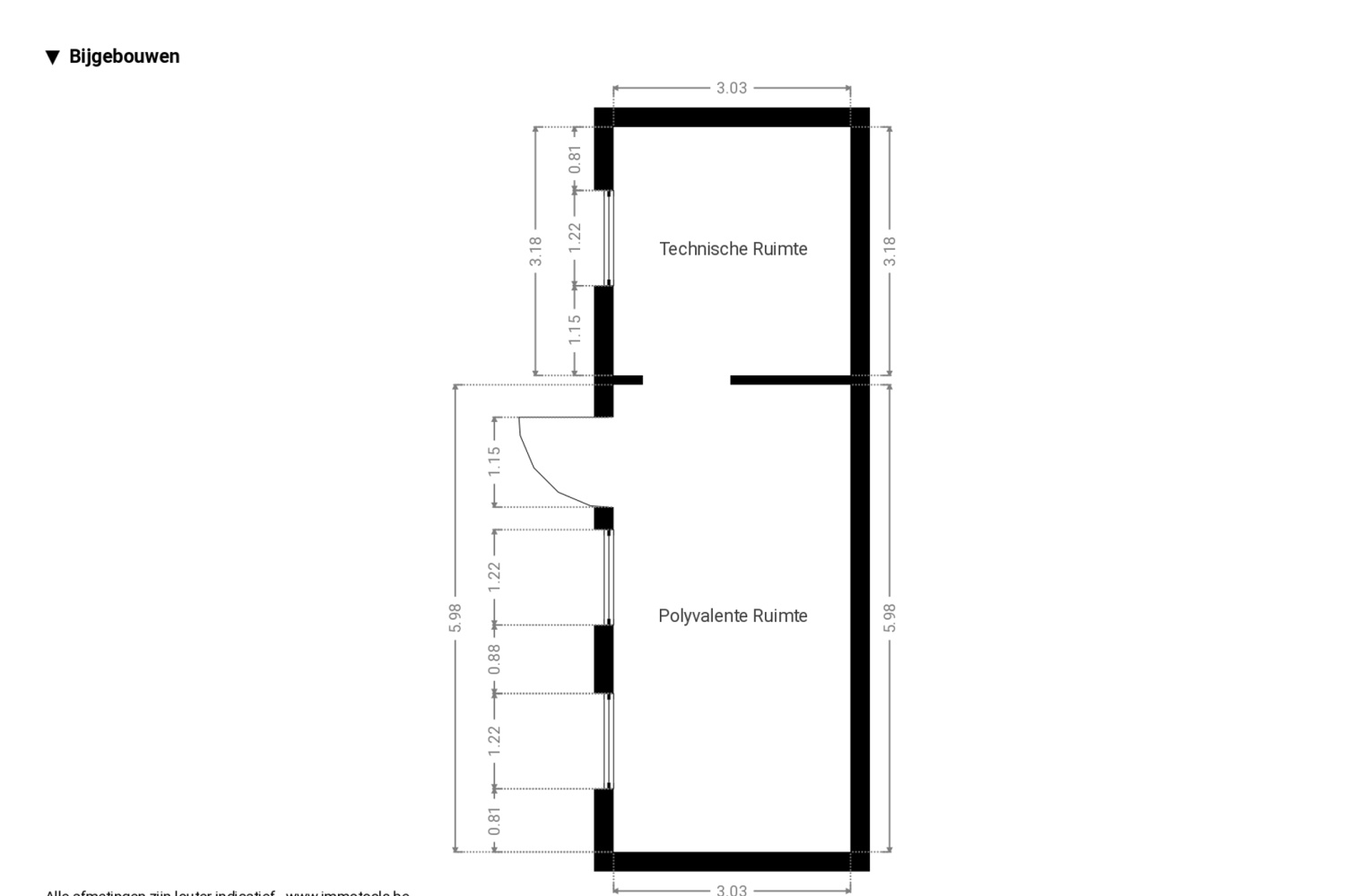
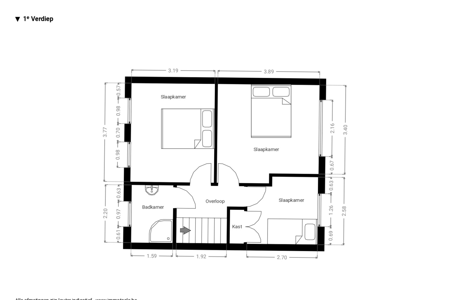
Indeling (zie grondplannen bij foto's en documenten): -1: kelder. 0: inkomhal, toilet, woonkamer, eetkamer, keuken, garage. +1: nachthal, 3 slpk, badkamer. Bergzolder. Buiten: tuin, bijgebouw.
Beschrijving: De inkomhal met apart toilet maakt onmiddelijk de verbinding met de keuken en de woonkamer. Beide ruimtes grenzen aan de eetkamer achteraan, dewelke mits renovatie zouden kunnen leiden tot één verbonden leefruimte. Vanuit de eetkamer is er toegang tot de ruime garage die perfect nog ruimte biedt voor een achterinkom/wasplaats/berging/bijkeuken. De verdieping geeft ruimte aan de badkamer en 3 slpk van 13.4, 12 en 7.1 m². Ten slotte is er nog een droge kelder (12.4 m²) en een bergzolder. Buiten beschik je over een zuidwestelijk georiënteerde, rustig gelegen tuin met ruim bijgebouw (28 m²).
bijzondere informatieplicht: in aanvraag.
Dit is geen aanbod maar een onderhandelingsvoorstel. Alle informatie onder voorbehoud van materiële vergissingen en/of wijzigingen.
Dit is geen aanbod maar een onderhandelingsvoorstel. Alle informatie onder voorbehoud van materiële vergissingen en/of wijzigingen.