Duurzaam nieuwbouw appartement met 2 slaapkamers, terras, autostaanplaats, kelderberging en verschillende gemeenschappelijke ruimtes. Beschikbaar: 01/04/2026. Gemeenschappelijke kosten: €185,00 (forfait). Privatief verbruik verwarming € 145,00 (provisie).

Davy Vueghs
T: +32 14 41 42 42
E: davy@vansweevelt.be
kantoor Turnhout
Graatakker 91
2300 Turnhout
Duurzaam nieuwbouw appartement met 2 slaapkamers, terras, autostaanplaats, kelderberging en verschillende gemeenschappelijke ruimtes. Beschikbaar: 01/04/2026. Gemeenschappelijke kosten: €185,00 (forfait)*. Privatief verbruik verwarming € 145,00 (provisie)**.
Ligging: centraal gelegen in het centrum van Turnhout, nabij het station.
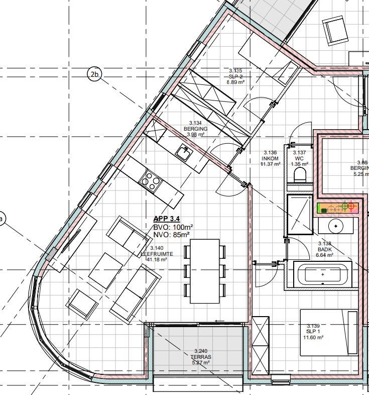
Indeling: inkomhal met apart toilet, leefruimte met open keuken, slaapkamer, badkamer, technische berging, terras, autostaanplaats en kelderberging.
Beschrijving: U betreedt het appartement op de derde verdieping via de inkomhal met aparte berging. Aansluitend bevindt zich de leefruimte met open keuken, die uitgerust is met koelkast, kookplaat, dampkap en oven. Verder bevindt zich een hal die leidt naar de 2 slaapkamers, apart toilet en de badkamer. De badkamer is voorzien van een inloopdouche, lavabo in meubel. Het appartement beschikt ook over een technische berging, een autostaanplaats en een kelderberging. Op een deel van het dak zijn zonnepanelen geplaatst, de opgewekte energie wordt gebruikt voor de werking van het collectieve verwarmingssysteem. Er zijn verschillende gemeenschappelijke ruimtes voorzien:
- 2 collectieve dakterassen;
- collectieve tuin;
- collectieve wasbar met Miele-toestellen;
- gemeenschappelijke fietsenstalling.
TRACKS is een futureproof woonconcept in het hart van Turnhout, waar duurzaam en slim ruimtegebruik hand in hand gaan met sterke collectiviteit.
Het project combineert compacte, kwalitatieve appartementen met gedeelde voorzieningen zoals woonruimtes, dakterrassen en mobiliteitsoplossingen, waardoor privécomfort en sociaal leven elkaar versterken.
De uitgesproken architectuur en centrale ligging aan een mobiliteitsknooppunt maken TRACKS tot een gebouw dat inzet op verbinding, bereikbaarheid en levenskwaliteit.
TRACKS richt zich op een diverse maar bewuste doelgroep: dynamische stadsbewoners én mensen die bewust kiezen voor wonen met sociale connectie.
Een eigentijds woonmodel voor wie toekomstgericht, duurzaam en stedelijk wil leven.
Optioneel kan er een extra autostaanplaats gehuurd worden voor €75,00/maand, zolang er nog beschikbaar zijn.
Beschikbaar: 01/04/2026. Gemeenschappelijke kosten: €185,00/maand (forfait) en €145,00/ maand (provisie) als aandeel voor de privatie verwarming.
*Een forfaitkost is een vast bedrag dat je betaalt, ongeacht het werkelijke verbruik. In dit geval omvat het forfait de kosten voor de gemeenschappelijke delen en het collectief onderhoud, en wordt dit bedrag niet achteraf verrekend.
**Een provisiekost betekent in dit geval dat je maandelijks een voorschot betaalt voor de variabele kosten van verwarming en het opwarmen van warm water. De effectieve kosten worden later afgerekend op basis van het werkelijke verbruik.
Dit is geen aanbod maar een onderhandelingsvoorstel. Alle informatie onder voorbehoud van materiële vergissingen en/of wijzigingen.
Dit is geen aanbod maar een onderhandelingsvoorstel. Alle informatie onder voorbehoud van materiële vergissingen en/of wijzigingen.