
Mathieu Vansweevelt
T: +32 14 41 42 42
E: mathieu@vansweevelt.be
kantoor Turnhout
Graatakker 91
2300 Turnhout
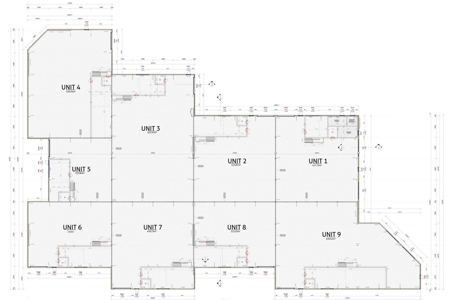
KMO-unit 2 met een oppervlakte van 414 m² inclusief een kantoorruimte van 63 m² en een mezzanine van 63 m².
Plafondhoogte van 5,5 tot 6 meter met lichtstraat en elektrische sectionaalpoort van 4 x 4,5 meter.
Autostaanplaatsen 16, 17, 18
Verwarming met heteluchtblazers.
Gelegen naast kanaal Schoten - Dessel.
Dit is geen aanbod maar een onderhandelingsvoorstel. Alle informatie onder voorbehoud van materiële vergissingen en/of wijzigingen.
Dit is geen aanbod maar een onderhandelingsvoorstel. Alle informatie onder voorbehoud van materiële vergissingen en/of wijzigingen.