3 slpk app. (123m²) in centrum Herentals met o.a. zuidwest georiënteerd terras, kelderberging, garagebox en gunstig EPC B-label (122 kWh/m²). Zeer goed onderhoud. Lift. Gelegen in verkeersvrij binnengebied op 10 min wandelen van hartje Herentals.

Morgane Schoofs
T: +32 14 21 06 09
E: morgane@vansweevelt.be
kantoor Herentals
Belgiëlaan 4
2200 Herentals
3 slpk app. (123m²) in centrum Herentals met o.a. zuidwest georiënteerd terras, kelderberging, garagebox en gunstig EPC B-label (122 kWh/m²). Zeer goed onderhoud. Lift. Gelegen in verkeersvrij binnengebied op 10 min wandelen van hartje Herentals. 108 euro/m alg. kosten. Garage + kelder inbegrepen in de vraagprijs. CV-ketel (gas) vernieuwd in 2024.
Ligging: gelegen in een verkeersvrij binnengebied op 10 min. van de markt en 400m van station Herentals. Alle faciliteiten op wandelafstand.
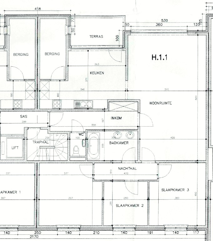
Indeling: +1: inkomhal, leefruimte, keuken, berging, terras, nachthal, badkamer, 3 slpk. -1: kelderberging, aparte garagebox.
Beschrijving: De private inkomhal met vestiaire brengt je meteen tot in de leefruimte en de keuken. Beide ruimtes zijn voorzien van veel licht en hebben een zuidwestelijke oriëntatie. Een grote schuifraam brengt je vanuit de keuken tot op het terras. Verder is er aan de keuken nog een berging/wasplaats voorzien. De achterzijde van het appartement geeft de plek aan een ruime badkamer en 3 slaapkamers van 15, 14 en 8 m². De grootste kamer is voorzien van een ingemaakte kastenwand. Ondergronds beschik je nog over een hoge kelderberging (5,5m²) en een aparte garagebox met automatische poort. Beide ruimtes zijn erg dicht bij de lift gelegen.
Vermeldingen inzake bijzondere infoplicht: omgevingsvergunning stedenbouwkundige handelingen uitgereikt, woongebied, geen rechterlijke herstelmaatregel of bestuurlijke maatregel opgelegd of opname in het maatregelenregister, geen voorkooprecht ruimtelijke ordening, geen omgevingsvergunning voor verkavelen van gronden, geen watergevoelig openruimtegebied
Dit is geen aanbod maar een onderhandelingsvoorstel. Alle informatie onder voorbehoud van materiële vergissingen en/of wijzigingen.
UW VASTGOEDADVISEUR
Morgane Schoofs
Dit is geen aanbod maar een onderhandelingsvoorstel. Alle informatie onder voorbehoud van materiële vergissingen en/of wijzigingen.