
Nina Belmans
T: +32 14 49 44 11
E: nina@vansweevelt.be
kantoor Mol
Venakkerstraat 8, bus 104
2400 Mol
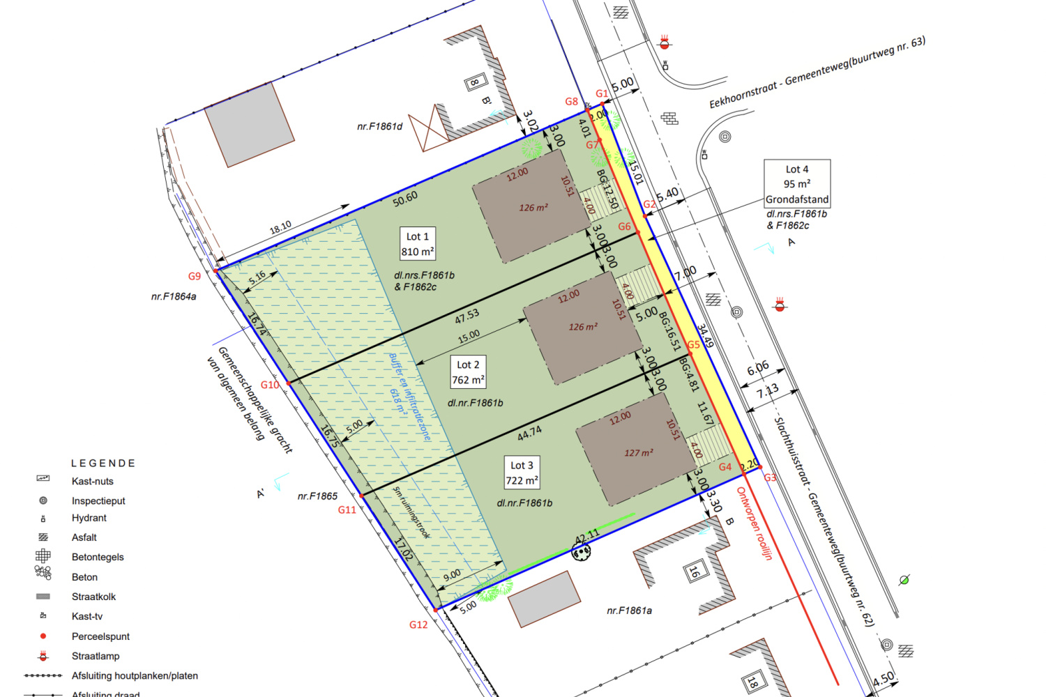
Bouwgrond van 722 m² voor het bouwen van een open bebouwing op rustige ligging in Mol Heidehuizen.
Ligging: gelegen in een residentiële en groene omgeving nabij Mol centrum.
Beschrijving: Deze bouwgrond van 722 m² biedt een uitstekende gelegenheid voor het realiseren van een open bebouwing op een rustige ligging in Heidehuizen te Mol. Winkels, horeca, openbaar vervoer en scholen bevinden zich in de nabije omgeving. Bouwzone vooraan breedte 10,51 m en achteraan breedte 10,51 m. Bouwzone diepte 12 m.
Afmetingen bouwgrond en bouwvoorschriften kunt u opvragen via nina@vansweevelt.be
Dit is geen aanbod maar een onderhandelingsvoorstel. Alle informatie onder voorbehoud van materiële vergissingen en/of wijzigingen.
Dit is geen aanbod maar een onderhandelingsvoorstel. Alle informatie onder voorbehoud van materiële vergissingen en/of wijzigingen.