Kantoorruimte met 4 individuele kantoren en keuken met een totale oppervlakte van 281m² gelegen op de 1ste verdieping in de KMO zone Brugstraat te Turnhout. Onmiddellijk beschikbaar. EPC B. Gemeenschappelijke kosten: €50,00 (provisie).

Davy Vueghs
T: +32 14 41 42 42
E: davy@vansweevelt.be
kantoor Turnhout
Graatakker 91
2300 Turnhout
Kantoorruimte met 4 individuele kantoren en keuken met een totale oppervlakte van 281m² gelegen op de 1ste verdieping in de KMO zone Brugstraat te Turnhout. Onmiddellijk beschikbaar. EPC B. Gemeenschappelijke kosten: €50,00 (provisie).
Ligging: Deze kantoorruimte bevindt zich in de KMO-zone Brugstraat te Turnhout, te midden van diverse andere commerciële gelegenheden. De locatie biedt een vlotte aansluiting op de ring van Turnhout en een goede verbinding naar de autosnelweg E34 en omliggende gemeenten.
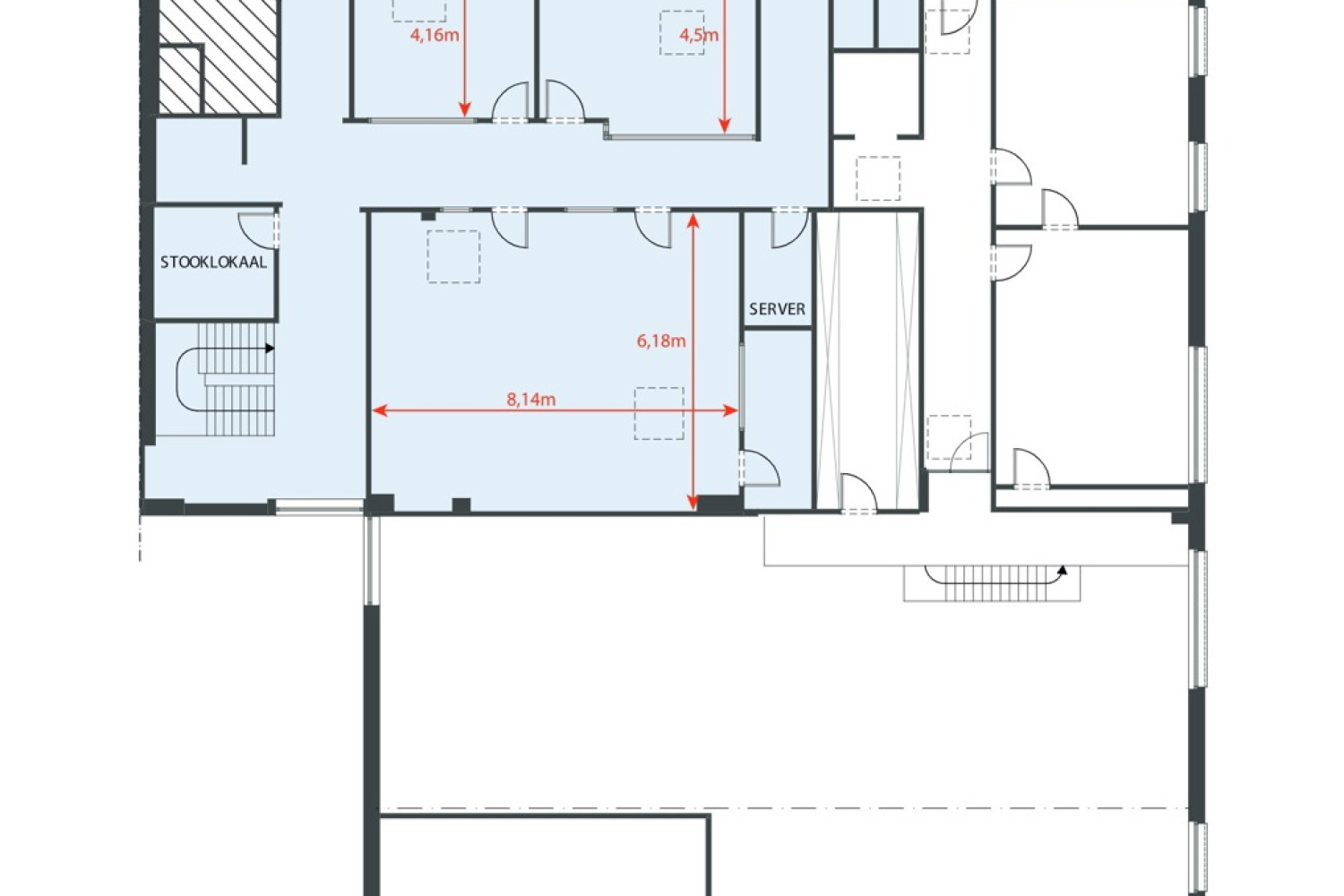
Indeling: inkomhal, CV-ruimte, vestiaire, 4 individuele kantoren, keuken, serverruimte en gescheiden toiletten.
Omschrijving: deze instapklare kantoorruimte is gunstig gelegen in de KMO-zone Brugstraat te Turnhout en heeft een totale oppervlakte van 281m². De ruimte is opgedeeld in 4 individuele kantoren met oppervlakten van 50,3m², 30,5m², 21,6m² en 20m². Aangrenzend aan het grootste kantoor bevindt zich nog een extra ruimte van 6m². De keuken heeft een oppervlakte van 16,6m² en is uitgerust met een spoelbak en een koelkast. Deze ruimte kan tevens worden gebruikt als vergaderzaal. In alle kantoren en in de keuken zijn voldoende netwerkvoorzieningen aanwezig.
De kantoorruimte beschikt over gedeeld sanitair, met afzonderlijke toiletten voor mannen en vrouwen. Daarnaast zijn er in de KMO-zone voldoende publieke parkeerplaatsen beschikbaar.
Het gebouw is energiezuinig, met een EPC-score B.
Dit is geen aanbod maar een onderhandelingsvoorstel. Alle informatie onder voorbehoud van materiële vergissingen en/of wijzigingen.
Dit is geen aanbod maar een onderhandelingsvoorstel. Alle informatie onder voorbehoud van materiële vergissingen en/of wijzigingen.