Bestaande woning die volledig gerenoveerd zal worden opgeleverd, met 2 slaapkamers en stadstuin te Turnhout! EPC is momenteel F maar wordt naar A gebracht, met daarnaast conforme elektriciteit en asbestveilig!

Enya Wouters
T: +32 14 41 42 42
E: enya@vansweevelt.be
kantoor Turnhout
Graatakker 91
2300 Turnhout
Bestaande woning die volledig gerenoveerd zal worden opgeleverd, met 2 slaapkamers en stadstuin te Turnhout! EPC is momenteel F maar wordt naar A gebracht, met daarnaast conforme elektriciteit en asbestveilig!
Ligging: de woning bevindt zich in een zijstraat van de Steenweg op Oosthoven waardoor deze een rustige, maar toch zeer centrale ligging geniet vlakbij scholen, winkels, openbaar vervoer en invalswegen. Op slechts 2 km van de autosnelweg, 10 minuten van het station en met een erg vlotte verbinding naar de omliggende dorpen.
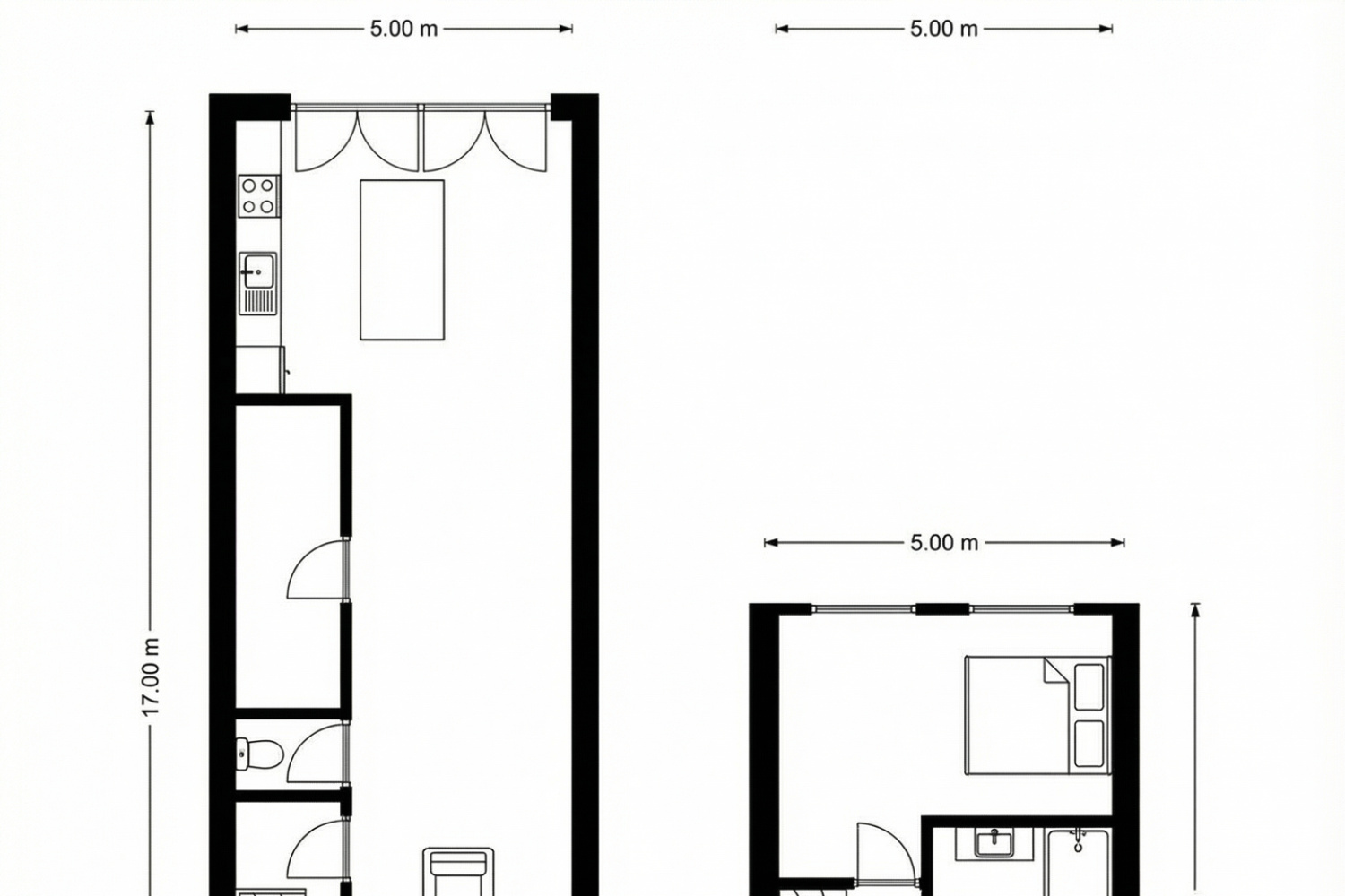
Indeling: +0: inkomhal - woonkamer met open keuken - berging - apart toilet. +1: 2 slaapkamers - badkamer.
Omschrijving: de woning wordt volledig gerenoveerd door de verkoper, wat je de kans geeft om te genieten van een instapklare woning zonder zorgen. In samenspraak met de verkoper is er meer dan voldoende ruimte om rekening te houden met uw eigen noden en wensen. Altijd al gedacht aan een totaalrenovatie maar schrikt alle verantwoordelijkheid, stress en organisatie u af? Dan is dit project ideaal aangezien de zorgen uit handen gegeven worden maar uw mening blijft gelden!
Indien u meer informatie wenst betreffende de werking van deze verkoop verwelkom ik u graag in onze kijkwoning/op kantoor!
Bijzondere informatieplicht: in aanvraag
Dit is geen aanbod maar een onderhandelingsvoorstel. Alle informatie onder voorbehoud van materiële vergissingen en/of wijzigingen.
Dit is geen aanbod maar een onderhandelingsvoorstel. Alle informatie onder voorbehoud van materiële vergissingen en/of wijzigingen.